Last week, we talked about dated floors plans and how our priorities have changed. Floor plans today focus more on causal lifestyle living than flashy formal rooms. We shared a floor plan that was sent to us seeking advice on what to do next. This week, I’ll share our proposed changes.
Considering the Location
In this case, all we have is a floor plan and no other context. Often, location plays a huge role in determining how or whether to proceed. If it is a great neighborhood in the right part of town, remodeling may be the smart thing to do. If it is in the best part of town – some may find the lot worth more that the house – AKA a scrap off. If the neighborhood is just okay or worse, bomb the price and move on.
Step One – Evaluation
Armed with a floor plan, we can now begin to evaluation the pros and cons of the home.
The pros:
- 3 car garage. This is has been a trend since the 90’s and is especially vital for a house in the suburbs without access to mass transit.
- Daylight basement. While it is not built out – it does has plumbing in place for a future build out.
- Focal point stairs: A curved staircase going both up and down stairs is a big wow in the home.
- Large primary bedroom: at 13’ by 18’, the bedroom is nicely sized for a king size bed with a couple chairs by the bay window.
The Cons:
- Too much square footage devoted to formal rooms. Today’s lifestyle is more casual.
- Too much circulation. The entire center of the home is devoted to circulation. While the stairs are dramatic – people do have to live there.
- The Greenhouse. From the pictures, this seems to be an awkward space. Because it is visible from the front door, determining its function is more limited. It is also has difficult proportions – too low to too high in too small of an area.

- The kitchen: This is a big negative in my book. It is too small and too isolated from the family room. It also has very little storage.

- Primary closets: These are way too small. There may be two of them – but the amount of hanging is pitiful.

- Primary bath: There is only one sink, the toilet and the bidet are fully exposed, the corner tub is huge, while the shower is tiny. Most use the shower daily and may only use the tub occasionally.

- Bedroom 2. While the bedroom is nicely sized, the closet is tiny and its bath is on the other side of the second floor! Wow – talk about a naked run!!!!

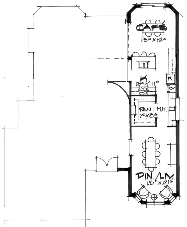
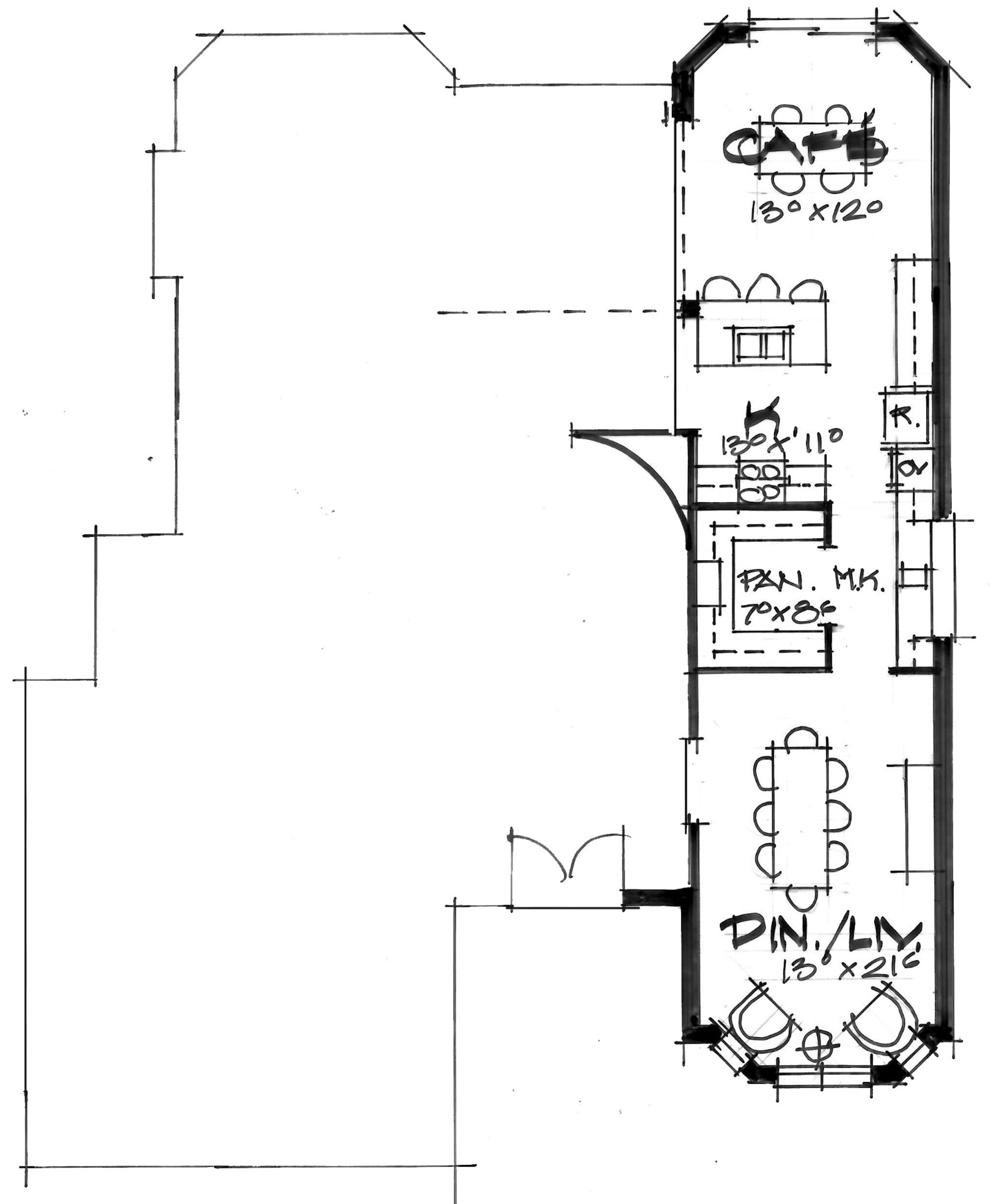
Proposed First Floor Solutions
Kitchen

I would love to capture some of the formal spaces for the casual living spaces. Let’s start with making the kitchen bigger and adding a lot more storage. I would add an island facing the cafe and the bay windows. But because the space is only 13’ wide – more cabinets are needed. Would it be terrible to cover up the window over the sink in favor of more cabinets? I thought the dining room window would be lovely in the messy kitchen/butler pantry area, bringing in natural light to the giant walk in pantry. Since I only have a floor plan, I don’t know the sill height of these windows, which could be a problem. The pantry is so oversized so it could hold a second refrigerator or the microwave.
The front formal room could either be a dining or a living room – or a combo like a keeping room. I wish the kitchen could have a better relationship with family room. I thought about putting the café in the greenhouse space and the kitchen island facing the greenhouse and the family room beyond – but the column holding at the end of the two story space ended up in the middle of the kitchen island.
Proposed Second Floor Solutions
While the primary bedroom is adequately sized, adding a few more feet wouldn’t hurt. However, the bath and the closet are not big enough. Only square footage can fix this problem. And since bedroom two doesn’t work well as a bedroom because of the naked run – I would use it to fix both! Our proposed fix adds three large walk in closets: his, hers and off-season clothes. Just for fun, how about a coffee bar? The bathroom would take advantage of the front bay window and now has his and her vanities, a private toilet room, a large shower, and the free standing tub.
Bedroom 2 could get moved to the daylight basement since there is ample square footage there and plumbing for a full bath. That would be the ideal place for the couple to live while the home is being renovated.
We considered capturing the floor space over the front door for an office. But since virtual meetings are so popular, it would need to be closed off acoustically. The curved handrail would need to become a curved wall. A lot of expense for a small home office.
What do you think?
This home clearly chased attention over function. I think our proposed changes make the home much more livable. Is it worth doing? You tell me. How else would you improve the home? What would you look for before committing to a full renovation? Maybe there are smaller changes that you think would greatly improve the house. I’d love to hear your thoughts!
Categorized in: Uncategorized
This post was written by Housing Design Matters



